ΚΡΗΤΗ
Νέο «σπίτι» για το Ωδείο Ηρακλείου: Έτσι θα γίνει το ιστορικό κτίριο στο κέντρο της πόλης
Όταν μια ιδιωτική δωρεά ξεκλειδώνει ένα χρόνιο πολιτιστικό αίτημα της πόλης
Σε τροχιά οριστικής υλοποίησης μπαίνει το όραμα για τη μόνιμη στέγαση του Ωδείου Ηρακλείου, με αφετηρία τη σπουδαία δωρεά της Μαρία Λυριτζάκη προς τον Δήμο Ηρακλείου και με τις τεχνικές και διοικητικές διαδικασίες να βρίσκονται πλέον στο τελικό στάδιο.
Όπως έχει αποκαλύψει το Cretalive, η κ. Λυριτζάκη δωρίζει στον Δήμο ένα εμβληματικό νεοκλασικό κτίριο, με μοναδικό όρο να στεγάσει το Ωδείο Ηρακλείου και ευρύτερες πολιτιστικές υποδομές, όπως η Ορχήστρα Νέων Κρήτης. Πρόκειται για μια πράξη πολιτιστικής προσφοράς υψηλού συμβολισμού, που ανοίγει νέους ορίζοντες για τη μουσική εκπαίδευση στην πόλη.
Το έργο έτοιμο - εκκρεμεί μόνο τυπική έγκριση
Την ίδια ώρα, το έργο αποκατάστασης και λειτουργικής αναβάθμισης του Ωδείου είναι πλήρως ώριμο. Όπως δηλώνει στο Cretalive ο αρχιτέκτονας μηχανικός Ηρακλής Πυργιανάκης, η χρηματοδότηση για τη δημοπράτηση έχει εξασφαλιστεί, τα χρήματα βρίσκονται στο Ταμείο του Δήμου και όλες οι μελέτες και τα σχέδια είναι έτοιμα.
Η μοναδική εκκρεμότητα αφορά μια τυπική έγκριση από την Αρχαιολογική Υπηρεσία, η οποία καθυστέρησε για γραφειοκρατικούς λόγους περίπου έναν χρόνο. Ο φάκελος έχει ήδη διαβιβαστεί στο Τοπικό Αρχαιολογικό Συμβούλιο Κρήτης και εκφράζεται η εκτίμηση ότι εντός Φεβρουαρίου θα δοθεί το «πράσινο φως» για να προχωρήσει άμεσα η δημοπράτηση.
Παράλληλα, η δωρήτρια Μαρία Λυριτζάκη έχει εξασφαλίσει και τα κονδύλια για τον πλήρη εξοπλισμό του Ωδείου, από μουσικά όργανα και πιάνα έως τον αναγκαίο υλικοτεχνικό εξοπλισμό, ώστε ο χώρος να παραδοθεί πλήρως λειτουργικός.
Ένα νεοκλασικό με βαθιές ιστορικές ρίζες
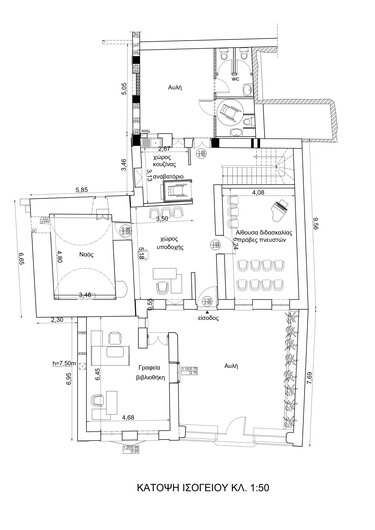
Το ακίνητο, συνολικής επιφάνειας 254 τ.μ., αποτελείται από ισόγειο και έναν όροφο. Στο ισόγειο διατηρείται τμήμα του Ναού του Αγίου Παύλου του Τάγματος των Σερβιτών, που χρονολογείται από το 1501. Κατά την τουρκοκρατία μετατράπηκε σε κατοικία, ενώ από την περίοδο της Κρητικής Πολιτείας ανήκε στην οικογένεια Βασιλάκη.
Τα προηγούμενα χρόνια είχε αγοραστεί από την οικογένεια Μιχαλίτση με στόχο τη μετατροπή του σε ξενοδοχείο πόλης, σχέδιο που δεν προχώρησε. Στη συνέχεια, η Μαρία Λυριτζάκη το απέκτησε και προχώρησε στη δωρεά του στον Δήμο Ηρακλείου, αναλαμβάνοντας εξ ολοκλήρου το κόστος αγοράς, που ξεπέρασε τις 520.000 ευρώ, καθώς και τις μελέτες ανακαίνισης και συντήρησης.
Αγορά και δωρεά την ίδια ημέρα
Η Οικονομική Επιτροπή του Δήμου, οι αρμόδιες υπηρεσίες και η Αποκεντρωμένη Διοίκηση Κρήτης κινήθηκαν σε απόλυτο συγχρονισμό, ώστε τα συμβόλαια αγοράς και δωρεάς να ολοκληρωθούν αυθημερόν, υπογραμμίζοντας τη σημασία και τη σοβαρότητα της πρωτοβουλίας.
Ένα κτίριο - ένα ζωντανό κύτταρο πολιτισμού
Το νεοκλασικό στην οδό Θεσσαλονίκης παύει να είναι απλώς ένα ιστορικό κτίριο. Με τη δωρεά της Μαρίας Λυριτζάκη και με το έργο πλέον ώριμο να προχωρήσει, μετατρέπεται σε ζωντανό κύτταρο πολιτισμού, που φιλοδοξεί να στεγάσει την καρδιά της μουσικής παιδείας στο Ηράκλειο.
Η προσφορά αυτή δεν είναι μόνο οικονομική. Είναι μια πράξη βαθιά ανθρώπινη και συμβολική, σπάνια για την εποχή μας, που αφήνει ισχυρό πολιτιστικό αποτύπωμα στην πόλη.
Διαβάστε περισσότερες ειδήσεις από την Κρήτη και το Ηράκλειο
