ΚΡΗΤΗ
Ξεκινούν οι εργασίες για το Open Mall στην Πλατεία 1866 και τις περιμετρικές οδούς
Από τη Δευτέρα 27/3, στην οδό Καραϊσκάκη
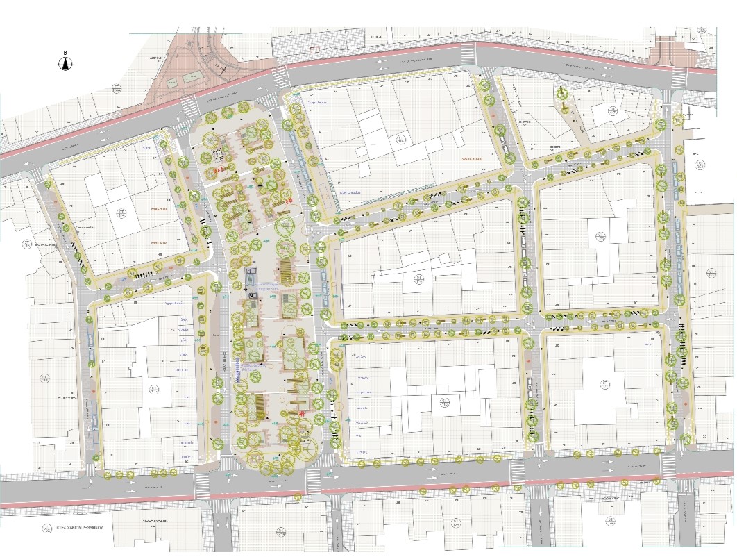
Με γοργούς ρυθμούς προχωράει το έργο για τη δημιουργία του νέου Ανοικτού Κέντρου Εμπορίου (Open Mall) από τον Δήμο Χανίων στην Πλατεία 1866, που περιλαμβάνει την ανάπλαση μιας μεγάλης περιοχής στον πυρήνα του εμπορικού κέντρου των Χανίων.
Σύμφωνα με τον σχεδιασμό, κι ενώ ήδη πραγματοποιούνται έργα από τον ΔΕΔΔΗΕ εντός της Πλατείας, το αμέσως επόμενο διάστημα πρόκειται να ξεκινήσουν οι εργασίες υπογειοποίησης όλων των δικτύων και η ριζική αναβάθμιση του αποχετευτικού και υδρευτικού δικτύου της Δ.Ε.Υ.Α.Χ., στην ευρύτερη περιοχή παρέμβασης.
Συγκεκριμένα, τη Δευτέρα 27 Μαρτίου 2023, θα ξεκινήσουν οι εργασίες της Δ.Ε.Υ.Α.Χ. από την οδό Καραΐσκάκη και θα επεκταθούν σε πρώτη φάση στις οδούς Μυλωνογιάννη, Κόρακα και Κριάρη, με κατεύθυνση προς την Πλατεία 1866.

Επίσης, στις 3 Απριλίου 2023, θα ξεκινήσουν οι εργασίες υπογειοποίησης του ΔΕΔΔΗΕ στους παραπάνω δρόμους αλλά και οι εργασίες πεζοδρόμησης. Η Τεχνική Υπηρεσία του Δήμου Χανίων και η ανάδοχος εταιρεία θα δώσουν ιδιαίτερη προσοχή, ώστε να δημιουργηθεί η μικρότερη δυνατή όχληση στους πολίτες και στα καταστήματα.
Οι εργασίες θα εκτελούνται επί του οδοστρώματος και μετά την περάτωση τους ο δρόμος θα δίνεται και πάλι στην κυκλοφορία. Το αμέσως επόμενο διάστημα, θα εκδοθούν οι σχετικές αποφάσεις για παρεμπόδισης της κυκλοφορίας και κλεισίματος των συγκεκριμένων οδών.
Διαβάστε περισσότερες ειδήσεις από την Κρήτη και τα Χανιά
