Νέα όψη αποκτά η ιστορική οδός Δελημάρκου στην Αγία Τριάδα
Ο Δήμαρχος Ηρακλείου Αλέξης Καλοκαιρινός υπέγραψε τη σύμβαση ανάπλασης της οδού Δελημάρκου και κάθετων οδών
Τη σύμβαση του έργου ανάπλασης της οδού Δελημάρκου και κάθετων οδών της στην Αγία Τριάδα, υπέγραψε ο Δήμαρχος Ηρακλείου Αλέξης Καλοκαιρινός με τον εκπρόσωπο της αναδόχου εταιρίας, παρουσία του Αντιδημάρχου Τεχνικών Έργων Γιώργου Σισαμάκη, της Γενικής Γραμματέως του Δήμου Μαρίας Σκραφνάκη και της Προϊσταμένης του Τμήματος Παλιάς Πόλης & Ενετικών Τειχών της Τεχνικής Υπηρεσίας Εύης Παπαδάκη.
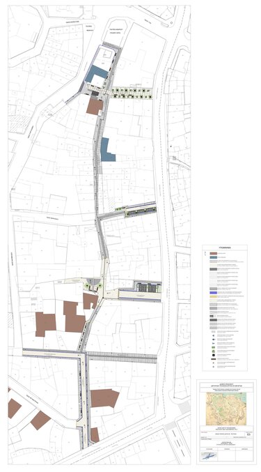
Το έργο το οποίο αναμένεται να βελτιώσει αισθητά την όψη της περιοχής παρέμβασης, αφορά μια έκταση περίπου 3.300 τ.μ. και περιλαμβάνει την πεζοδρόμηση της οδού Δελημάρκου, της οδού Ντενιδάκηδων στο τμήμα που διασταυρώνεται με την Δελημάρκου, τμήματος της οδού Δοϊράνης προς τη Γιαμαλάκη καθώς επίσης και την οδό Γαλάτειας Καζαντζάκη και τμήμα της οδού Γοργολαΐνη.
Ο Αλέξης Καλοκαιρινός αναφέρθηκε στον σχεδιασμό της Δημοτικής Αρχής για την ευρύτερη αναβάθμιση της ιστορικής περιοχής της Αγίας Τριάδας σημειώνοντας: «Αυτό θα είναι ένα σημαντικό έργο στο πλαίσιο της ευρύτερης ανάπλασης της Αγίας Τριάδας. Ειδικότερα η ανάπλαση της οδού Δελημάρκου η οποία ξεκινάει από την Λεωφόρο Καλοκαιρινού και καταλήγει στο Μποδοσάκειο. στην κρήνη Πριούλι, περιλαμβάνει και αναπλάσεις κάθετων δρόμων όπως είναι τμήματα των οδών Ντεντιδάκηδων, Δοϊράνης, Μηριόνου, Γοργολαΐνη και Γαλάτειας Καζαντζάκη. Με το έργο, το οποίο συνδυάζεται με το μεγάλο έργο της ανάπλασης του πυρήνα της Αγίας Τριάδας που είναι ενταγμένο στη Στρατηγική Βιώσιμης Αστικής Ανάπτυξης, δημιουργούνται οι προϋποθέσεις για κίνηση πεζή και ήπιας κυκλοφορίας στο μεγαλύτερο και πιο νευραλγικό κομμάτι της Αγίας Τριάδας και αναβαθμίζεται συνολικά η ιστορική γειτονιά.».
Η αναζωογόνηση της επιχειρηματικής και κοινωνικής ζωής της περιοχής παρέμβασης αποτελεί βασικό στόχο της Δημοτικής Αρχής. Οι παρεμβάσεις αποσκοπούν στην αισθητική, λειτουργική και βιοκλιματική αναβάθμιση του αστικού χώρου και στην ανάδειξη των ιδιαίτερων χαρακτηριστικών του αρχιτεκτονικού αποθέματος της περιοχής, είναι σύμφωνες με τις αρχές της βιώσιμης αστικής ανάπτυξης και δημιουργούν ασφαλείς συνθήκες πρόσβασης και εξυπηρέτησης σε άτομα με αναπηρία.
Σκοπός του συγκεκριμένου έργου, είναι η αναβάθμιση του κοινόχρηστου χώρου και η ανάδειξη του δικτύου πεζόδρομων, η εξασφάλιση της δυνατότητας στάσης και κίνησης ατόμων μειωμένης κινητικότητας, η εξασφάλιση της ελεύθερης κίνησης και στάσης πεζών, η υπογειοποίηση δικτύων για πλήρη οδικό φωτισμό, η εξασφάλιση άρδευσης, κρουνών πυρασφάλειας και απορροής ομβρίων καθώς και η εξασφάλιση δυνατότητας περιορισμένης προσπέλασης οχημάτων καθαριότητας οχημάτων άμεσων αναγκών και ασφάλειας (πυροσβεστικής ασθενοφόρου κ.α.).
Ο προϋπολογισμός του έργου «Ενιαίο Δίκτυο Πεζόδρομων-Ανάπλαση οδού Δελημάρκου», το οποίο δημοπρατήθηκε από την προηγούμενη Δημοτική Αρχή, είναι 1.263.155,51 ευρώ, έχει χρόνο υλοποίησης 12 μήνες και χρηματοδοτείται από το Ταμείο Ανάκαμψης και ίδιους πόρους του Δήμου Ηρακλείου.
Διαβάστε περισσότερες ειδήσεις από την Κρήτη και το Ηράκλειο
- "Apollo Christmas Day": Με χριστουγεννιάτικες μελωδίες "πλημμύρισε" η Παλιά Ηλεκτρική
- Συγκροτήθηκε σε σώμα η Νομαρχιακή Επιτροπή Ρεθύμνου του ΤΕΕ/ΤΔΚ
- Ηράκλειο: Αλλαγή... σκυτάλης στο αεροδρόμιο "Νίκος Καζαντζάκης"
