Ξεκινάει η δημιουργία Open Mall στην Πλατεία 1866, στα Χανιά
Π. Σημανδηράκης: «Ο Δήμος Χανίων έχει μπει στην περίοδο των μεγάλων έργων»
Συνεχίζονται με πυρετώδεις ρυθμούς οι παρεμβάσεις και τα έργα από τον Δήμο Χανίων, που θα αλλάξουν ριζικά την εικόνα και λειτουργία της πόλης. Με τη σημερινή υπογραφή σύμβασης από τον Δήμαρχο Χανίων, Παναγιώτη Σημανδηράκη και εκπρόσωπο της αναδόχου εταιρείας, ξεκινά κι επίσημα ένα ακόμα μεγάλο έργο: η δημιουργία του νέου Ανοικτού Κέντρου Εμπορίου (Open Mall) στην Πλατεία 1866, αρχικού προϋπολογισμού 3.200.000 ευρώ.

Κατά την υπογραφή της σύμβασης, που πραγματοποιήθηκε σήμερα στο Γραφείο του Δημάρχου Χανίων, παρόντες ήταν ο Αντιδήμαρχος Τεχνικής Υπηρεσίας, Μιχάλης Καλογριδάκης, ο Διευθυντής της Τεχνικής Υπηρεσίας του Δήμου Χανίων, Γιώργος Ευθυμίου, ο Πρόεδρος του Επιμελητηρίου Χανίων (ΕΒΕΧ), Αντώνης Ροκάκης, εκπρόσωποι της αναδόχου εταιρείας και στελέχη της Τεχνικής Υπηρεσίας του Δήμου.
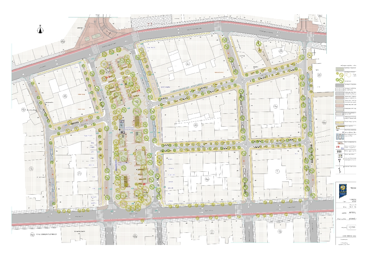
Το έργο προβλέπει τη διαμόρφωση της Πλατείας 1866 και των περιμετρικών οδών (Κορωναίου, Κορκίδη, Κριάρη, Κόρακα και των τμημάτων της Καραϊσκάκη και της Μυλωνογιάννη στην περιοχή παρέμβασης). Πρόκειται για μία μεγάλη περιοχή στον πυρήνα του εμπορικού κέντρου των Χανίων, που θα αναπλαστεί με προτεραιότητα στον κοινόχρηστο χώρο που θα είναι φιλικό για οικογένειες, παιδιά, πεζούς και ποδηλάτες και παράλληλα, θα αποτελεί ένα θελκτικό εμπορικό κέντρο για τους επιχειρηματίες της περιοχής∙ ένα Ανοιχτό Κέντρο Εμπορίου, ασφαλές, όμορφο και προσβάσιμο.
Συγκεκριμένα οι εργασίες αφορούν στην υπογειοποίησης όλων των δικτύων και τη ριζική αναβάθμιση του αποχετευτικού και υδρευτικού δικτύου της Δ.Ε.Υ.Α.Χ.. Η διαμόρφωση της πλατείας και των οδών περιμετρικά της, θα γίνει με ενιαίο, ισόπεδο, πλακόστρωτο δάπεδο μεταξύ των πεζοδρομίων και των δρόμων, οι οποίοι μετατρέπονται σε οδούς ήπιας κυκλοφορίας, με ανώτατο όριο τα 20 χιλ/ώρα.
Ο Δήμαρχος Χανίων, Παναγιώτης Σημανδηράκης σε δηλώσεις στα τοπικά μέσα ενημέρωσης, υπογράμμισε πως: «Με τη σημερινή υπογραφή σύμβασης επιβεβαιώνεται ότι ο Δήμος Χανίων έχει μπει στην περίοδο των μεγάλων έργων. Σε συνέχεια της μεγάλης ανάπλασης στην οδό Χατζημιχάλη Γιάνναρη και Σκαλίδη, σήμερα υπογράφουμε την ανάπλαση και αναβάθμιση του δημόσιου χώρου της πλατείας 1866 και των πέριξ οδών αυτής. Πρόκειται για μία ριζική αναβάθμιση, την οποία οι πολίτες περιμένουν εδώ και δεκαετίες και προβλέπει παρεμβάσεις στις παρακείμενες οδούς που θα επιτρέψουν τη μεγαλύτερη και ευκολότερη μετακίνηση των πολιτών με ισόπεδες οδούς ήπιας κυκλοφορίας».
Ο κ. Σημανδηράκης σημείωσε πως οι εργασίες θα ξεκινήσουν άμεσα, αμέσως μετά τις γιορτές των Χριστουγέννων και της Πρωτοχρονιάς, ενώ ο χρόνος υλοποίησης του έργου αναμένεται να έχει ολοκληρωθεί σε 12 μήνες.

Από τη μεριά του ο κ. Ροκάκης επεσήμανε: «Είναι εξαιρετικά σημαντικό που σήμερα βρισκόμαστε εδώ ως Επιμελητήριο μαζί με τον Δήμο Χανίων, υπογράφοντας μία σύμβαση που σηματοδοτεί την έναρξη του έργου αυτού. Στη συγκεκριμένη περίπτωση η συνεργασία φορέων, εν προκειμένω του Δήμου Χανίων και του Εμπορικού και Βιομηχανικού Επιμελητηρίου Χανίων, αποτελεί παράδειγμα προς μίμηση. Θυμίζω πως, ως πρότζεκτ, το Ανοικτό Κέντρο Εμπορίου Χανίων, βγήκε δεύτερο στην Ελλάδα, που σημαίνει ότι έχει και τη μεγάλη αποδοχή από τους ίδιους τους επιχειρηματίες, που εντάσσονται στη συγκεκριμένη περιοχή. Είναι πάρα πολύ σημαντικό καθώς πρόκειται για ένα έργο το οποίο θα δώσει μία πάρα πολύ ευχάριστη νότα στους πολίτες και τους επισκέπτες του Δήμου Χανίων και ταυτόχρονα, θα προσδώσει σημαντικά στην αγοραστική κίνηση της περιοχής».
«Για την εποχή των μεγάλων έργων του Δήμου Χανίων» έκανε λόγο ο Αντιδήμαρχος Τεχνικών Έργων, Μ. Καλογριδάκης, καθώς η συγκεκριμένη παρέμβαση «υλοποιείται παράλληλα με το έργο της Δημοτικής Αγοράς, την ανάπλαση του Δημοτικού Κήπου, την ανάπλαση της οδού Χατζ. Γιάνναρη και Σκαλίδη, την ανάπλαση των 30 οικοδομικών τετραγώνων στο κέντρο της πόλης και την εργολαβία 4 εκατομμυρίων για την ανακατασκευή πεζοδρομίων εντός αστικού ιστού».

Αναφορικά με τη χρηματοδότηση του έργου ο κ. Καλογριδάκης επισήμανε ότι: «Το έργο είναι απόλυτα χρηματοδοτούμενο και δεν θα επιβαρύνει τους Χανιώτες ούτε τον Δημοτικό προϋπολογισμό, καθώς χρηματοδοτείται κατά το ήμισυ από το ΕΠΑΝΕΚ ενώ το άλλο μισό εντάχθηκε πρόσφατα, χάρη στις προσπάθειες της Τεχνικής μας Υπηρεσίας, στο Ταμείο Ανάκαμψης».
Τέλος, ο Διευθυντής της Τεχνικής Υπηρεσίας, Γ. Ευθυμίου πραγματοποίησε αναλυτική παρουσίαση με το τι προβλέπει το έργο, στην αναδιάταξη των υποδομών της Πλατείας (περίπτερα, προτομές-αγάλματα, δημόσιες τουαλέτες), στην εγκατάσταση νέου ασύρματου δικτύου Internet (Wi-Fi) και οι κυκλοφοριακές ρυθμίσεις με τη νέα χωροθέτηση των χώρων στάθμευσης και αναμονής στα μέσα μαζικής μεταφοράς και τα ΤΑΞΙ.
- Εργασίες κλαδέματος στην οδό Αν. Γογονή, στα Χανιά
- Γιώργος Μαρινάκης για ΒΟΑΚ: Κανείς δεν μπορεί να αγνοεί το Ρέθυμνο
- Καλύτερη τιμή για τα αμπέλια αλλά αργότερα οι πληρωμές!
