Η σύμβαση για τη βιοκλιματική αναβάθμιση της πλατείας Ελευθερίας στην Κοινότητα Καστελλίου, υπογράφηκε την Τετάρτη 4 Οκτωβρίου, από το Δήμαρχο Μινώα Πεδιάδας Μανώλη Φραγκάκη και τον ανάδοχο του έργου, παρουσία του Αντιδημάρχου Γιάννη Δρακάκη.
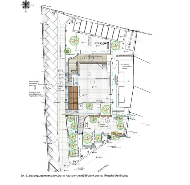
Βασικός στόχος του έργου είναι η βελτίωση της προσβασιμότητας, των συνθηκών θερμικής άνεσης και του νυχτερινού φωτισμού με παρεμβάσεις και κατασκευές όπως, αποξήλωση του υφιστάμενου στεγάστρου και κατασκευή νέου μικρότερης επιφάνειας, διαμορφώσεις κτιστών καθιστικών, τμηματική αντικατάσταση των σκληρών υλικών δαπεδόστρωσης στο νότιο τμήμα της πλατείας με χώμα και φύτευση, τοποθέτηση οργάνων υπαίθριου γυμναστηρίου, κ.α.

Με αφορμή την υπογραφή της σύμβασης ο Δήμαρχος Μινώα Πεδιάδας Μανώλης Φραγκάκης δήλωσε:
«Είμαστε πολύ χαρούμενοι που σήμερα υπογράψαμε τη σύμβαση ενός ακόμα έργου που στοχεύει στη βελτίωση της ποιότητας ζωής των κατοίκων, μέσω της αναβάθμισης ενός δημόσιου- κοινόχρηστου χώρου με έμφαση στη λειτουργικότητα, τη θερμική άνεση της Πλατείας και στόχο την περαιτέρω ανάδειξη της σε σημείο κοινωνικής δραστηριότητας και συνάθροισης, με χρήσεις που θα προάγουν την πολιτιστική έκφραση, την άθληση και την ψυχαγωγία».
Το έργο προϋπολογισμού 300.000€ χρηματοδοτείται από το Χρηματοδοτικό Πρόγραμμα του Πράσινου Ταμείου «ΔΡΑΣΕΙΣ ΠΕΡΙΒΑΛΛΟΝΤΙΚΟΥ ΙΣΟΖΥΓΙΟΥ» έτους 2021, Άξονας Προτεραιότητας 2: «Αστική Αναζωογόνηση & Λοιπές δράσεις Περιβαλλοντικού Ισοζυγίου» και από ίδιους πόρους του Δήμου.
Η προθεσμία για την περάτωση του συνόλου των εργασιών ορίζεται σε οκτώ μήνες από σήμερα, δηλαδή έως την 04/06/2024.

Διαβάστε περισσότερες ειδήσεις από την Κρήτη και το Ηράκλειο
